店舗・テナント トップ > 物件詳細
問合せコード
B05254-6
| 物件名 | 物件タイプ | 家賃総額(税込) | 延床面積 |
|---|---|---|---|
Qiz TENJIN |
賃貸店舗 | 相談 | 22.51 坪 74m² |
| 所在地 | 福岡県福岡市中央区大名1丁目14-45 |
|---|---|
| アクセス |
地下鉄空港線 天神駅
まで 徒歩約5分 |
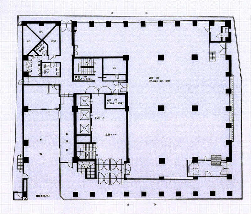
| フロア情報 | 6階 |
|---|---|
| フロアタイプ | 事務所・店舗 |
| 面積 | 22.51坪 (74.41m²) |
| 空調設備 |
| 賃料(税込) | 相談 | 敷金 | |
|---|---|---|---|
| 共益費(税込) | 敷地面積 | ||
| 入居可能日 | 25.10上旬入居可 | 構造 | SRC造 地上9階 地下2階 |
| 竣工年 | 1975年02月 | 用途地域 | |
| 物件用途 | 駐車場 | ||
| 設備 | 乗用13人乗り3基 |
| 備考 | 条件相談 天神西通り面する好立地! H22.フルリノベーション物件 3階:商業店舗サロンフロア 4階~:オフィスゾーン 定期借家契約 |
|---|

賃貸店舗・テナント探しに役立つオフィスネットワークの物件検索サイトは福岡の主要なエリアから、希望条件を指定しての検索、飲食・物販などの業態から物件を簡単に探せます。福岡市中央区大名1丁目14-45の賃貸店舗・テナント(問い合わせコード:B05254)の最新の空室状況、内覧のお申し込みなどお気軽にお問い合わせください。福岡最大級の物件情報量とお客様第一の人情溢れる対応でお客様の賃貸店舗・テナント探しを全力サポートいたします!